Funktionel & æstetisk opgradering af statslånshus
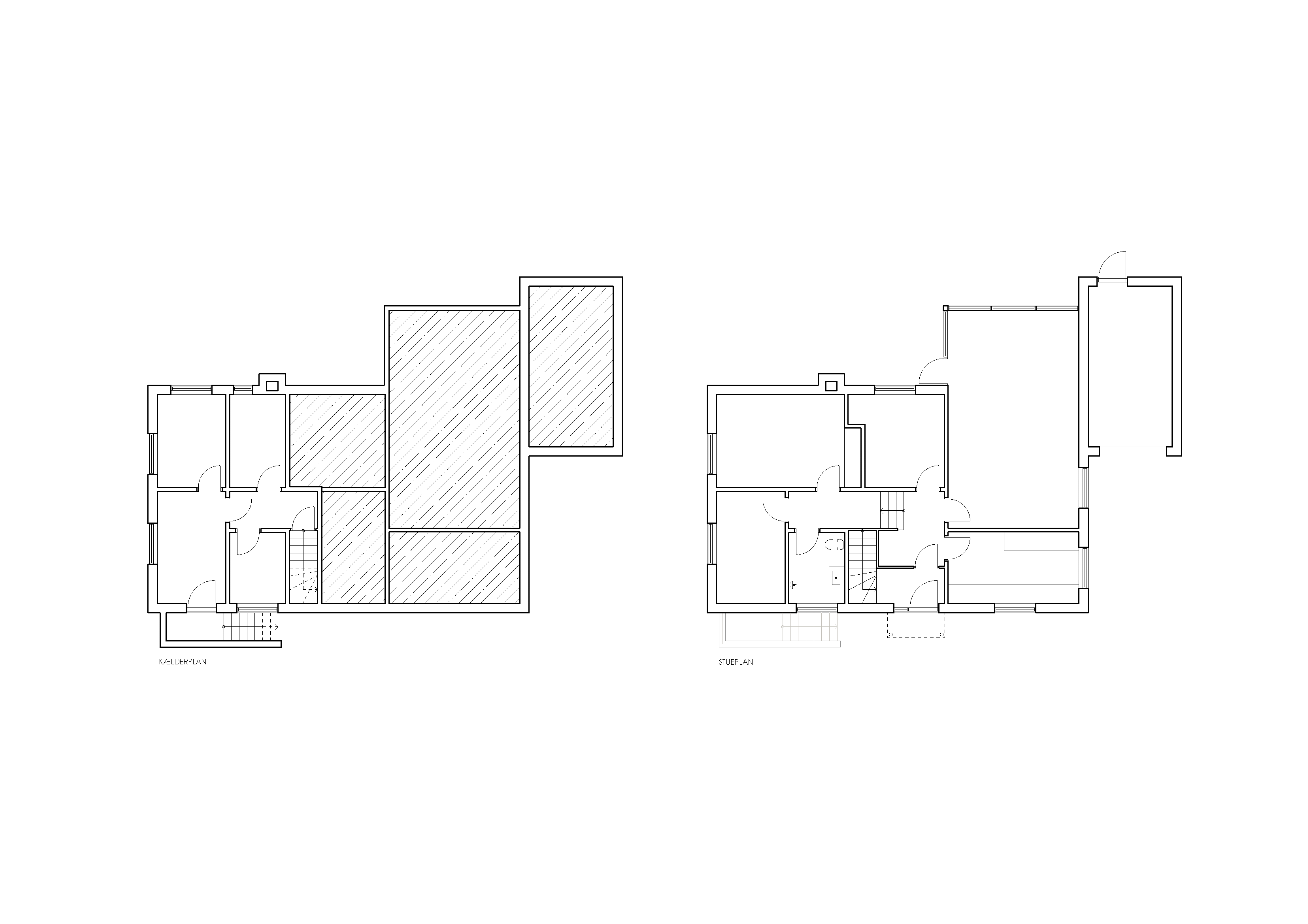
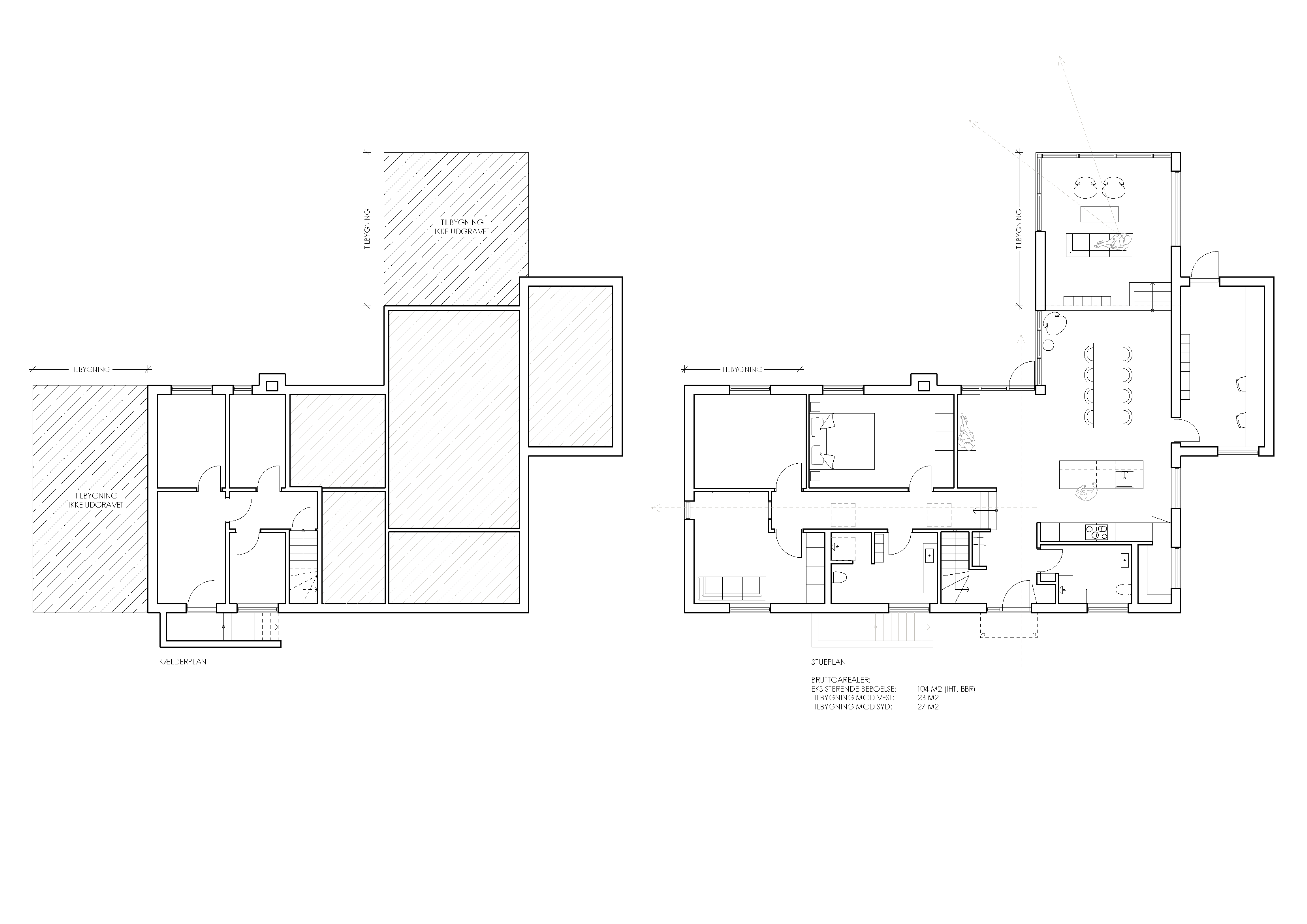
Ejerne af dette statslånshus fra 1959 i Sorø ønsker atudvide og ombygge boligen, så den imødekommer nutidens behov – med stor respekt for husets oprindelige arkitektur. Huset er blandt de sidste, der blev opført under statslånsordningen, og rummer tydelige arkitektoniske kendetegn fra perioden. De to tilbygninger mod henholdsvis syd og vest tager udgangspunkt i husets eksisterende formsprog og proportioner for at skabe en harmonisk helhed, der indpasser sig naturligt i den omkringliggende kontekst. Tilbygningen mod syd udføres udvendigt i genbrugssten fra det eksisterende hus og fremstår som en naturlig forlængelse heraf, mens tilbygningen mod vest opføres i ubehandlet Thermoask, der med tiden patinerer til en sølvgrå nuance. Den vandrette træbeklædning tilpasses murværkets eksisterende skiftegang, så linjeføringen videreføres og binder nyt og gammelt sammen. Vinduerne i både det eksisterende hus og tilbygningerne udføres i egetræ – udvendigt såvel som indvendigt – hvilket skaber et raffineret samspil mellem træbeklædningen og de oprindelige mursten. Materialernes ærlighed og varme tillægges således en central rolle i projektets arkitektoniske udtryk. Indvendigt omorganiseres de sekundære rum med henblik på at optimere funktionaliteten. Det eksisterende badeværelse udvides og totalrenoveres, og i tilknytning til entréen etableres et ekstra badeværelse – et centralt ønske fra bygherren. Køkkenet indrettes efter nutidige boligstandarder og fungerer som overgang til tilbygningen mod vest, der via etpar trin forbindes til en ny stue. Herfra åbner udsigten sig mod haven og Sorø Sø – en væsentlig kvalitet, som projektet har haft særligt fokus på at fremhæve. Taget udskiftes til tagpap med listedækning, så bebyggelsen fremstår som en samlet, rolig og velafbalanceret helhed.
Type:
Tilbygning - enfamiliehus
Beboelse:
154 m2
Carport:
Garage:
Beliggenhed:
Sorø
Status:
Skitseforslag
Bygherre:
Privat















