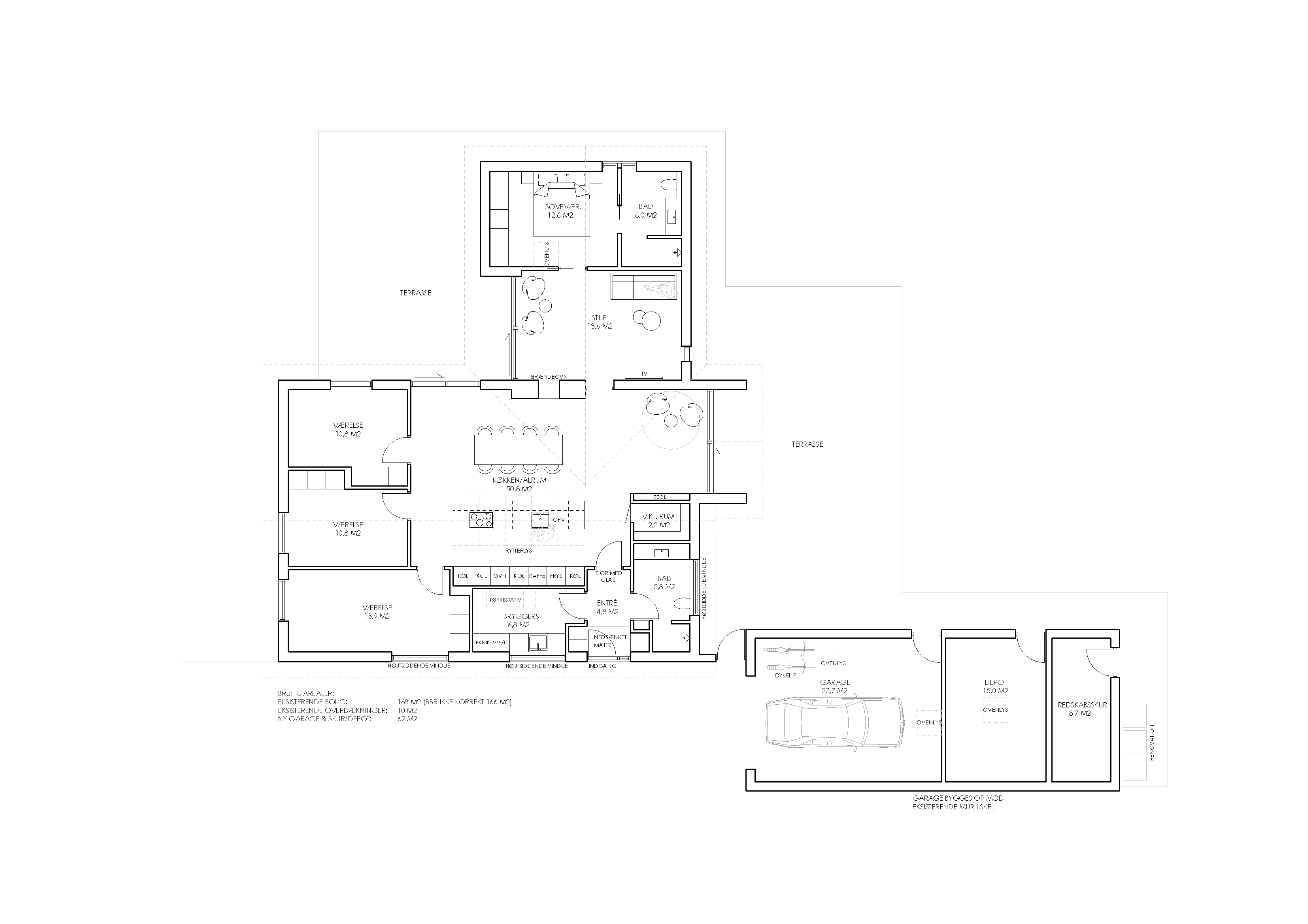
Transformation af firser arkitektur
Dette typehus i Dyrup fra 1985, der fik en tilbygning i 1988, står nu over for en gennemgribende transformation. De nuværende ejere ønsker at give boligen et tidssvarende arkitektonisk udtryk samt en lysere og mere funktionel indretning. I dag fremstår huset mørkt og en smule tungt, og et af de væsentligste ønsker er derfor at tilføre mere luft og dagslys. I køkken/alrummet etableres et rytterlys i kip, der lader himmellyset strømme ned i husets midte, mens de eksisterende vinduer udskiftes til gulvhøje egetræsvinduer, som tilfører både varme, stoflighed og generøse lysindfald. Facadens gavle beklædes med lodrette cedertræsbrædder i et elegant listelook. Det samme materiale gentages på den nye garage og det tilhørende depot, hvilket binder bygningerne sammen i en arkitektonisk helhed. De oprindelige røde mursten pudses hvide og skaber en ren, rolig overflade, der står i smuk kontrast til træbeklædningen og vinduernes varme glød. Tagkonstruktionen udskiftes eller bygges om til saksespær i alrummet, som giver øget loftshøjde og mere volumen i huset. I De øvrige rum bibeholdes eksisterende spær. Det nye tag udføres i matsort tegltagsten, sternlinjerne markeres ligeledes i sort, mens underlister i cedertræ fremhæver kontrasten mellem den hvide facade og styrker samspillet med egetræsvinduerne og de nye gavlbeklædninger. Indvendigt er materialevalget nøje afstemt: Døre og gulve udføres i egetræ, mens betongulvet med synlige sten tilfører en rå karakter, der spiller fint sammen med de varme træelementer. Loftet udføres i hvid gips som skaber en rolig overflade til rummene. Resultatet bliver en harmonisk bolig, hvor gode materialer og masser af lysindfald går hånd i hånd og løfter huset til et nutidigt og indbydende hjem.
Type:
Ombygning - enfamiliehus
Beboelse:
168 m2
Carport:
Garage:
62 m2
Beliggenhed:
Odense
Status:
Skitseforslag
Bygherre:
Privat















