Transformation af sommerhus i klitlandskabet med fokus på materialitet & lys
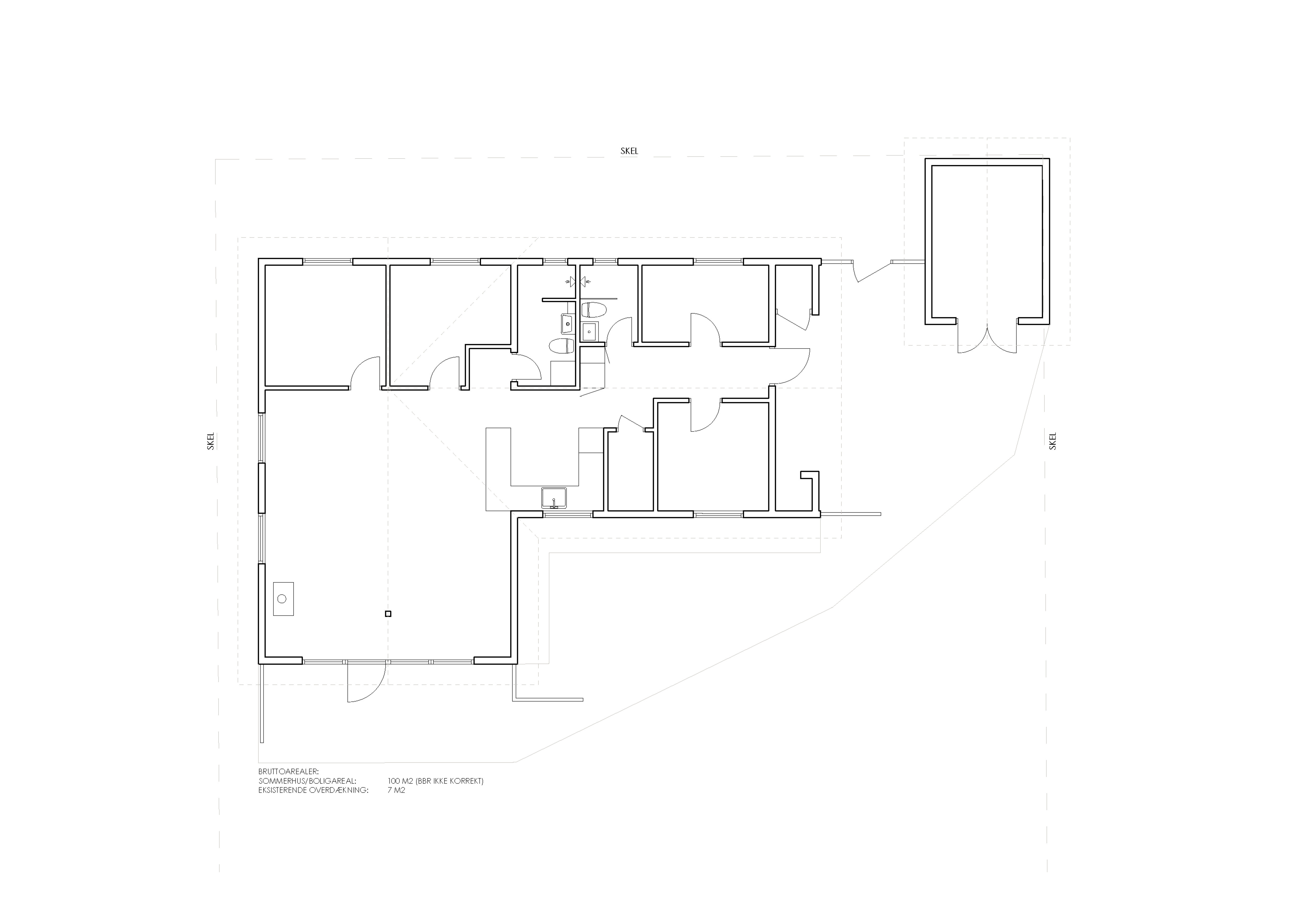
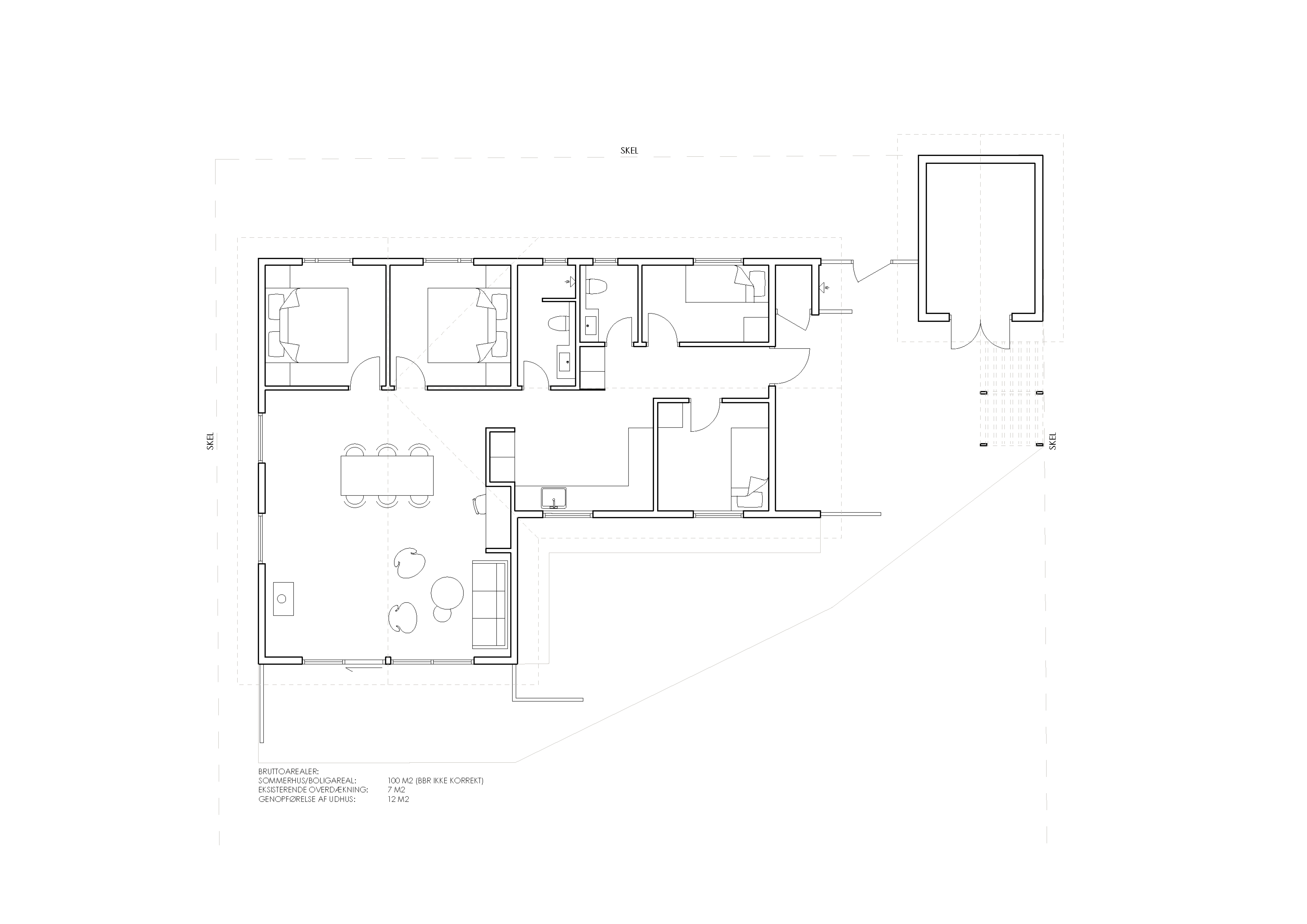
Det eksisterende sommerhus ligger smukt indlejret i det bølgende klitlandskab og gennemgår en nænsom renovering samt en genopførelse af udhuset, der skal fungere som opbevaringsrum. Projektet tager respektfuldt udgangspunkt i husets oprindelige arkitektur og materialitet for at bevare den karakteristiske sommerhusstemning, samtidig med at det tilpasses nutidens funktionelle behov og en moderne æstetik. Køkkenet udvides for at skabe bedre komfort, og den eksisterende sauna, som ikke længere benyttes, nedlægges. Det sydvendte vinduesparti i stuen føres op til kip, så loftets hældning udnyttes fuldt ud, og rummene fyldes med lys og luft. Fra stuen kan man følge solens gang over landskabet og ane fyret i horisonten. Det nye opholdsrum inviterer dagslyset til at strømme gennem huset fra syd til nord og skaber en lys, åben og indbydende atmosfære. Indvendigt bevares den eksisterende vægbeklædning, som males hvid, mens gulve i microcement tilfører en rå kontrast til de varme, nye egetræsdøre. Den bærende stolpe i stuen flyttes ud i facaden, så rummet opleves mere åbent og fleksibelt. Udvendigt videreføres transformationen med respekt for det oprindelige hus: Tørvetag og facadebeklædning matcher de eksisterende materialer, vinduer udføres udvendigt i samme farve som træbeklædningen, mens indersiden fremstår hvid. Alle udvendige underlister udskiftes til Thermowood fyr, hvilket tilfører varme og stoflighed og fremhæver husets arkitektoniske kvaliteter. Resultatet er et sommerhus, hvor den oprindelige charme og tætte kontakt til landskabet bevares, men hvor rummene samtidig er tilpasset en moderne livsstil med lys, funktionalitet og komfort. Et sted, der inviterer til ro, samvær og nærvær.
Type:
Ombygning - sommerhus
Beboelse:
100 m2
Carport:
Garage:
Beliggenhed:
Blåvand
Status:
Skitseforslag
Bygherre:
Privat









