Transformation af Thobo-Carlsen villa
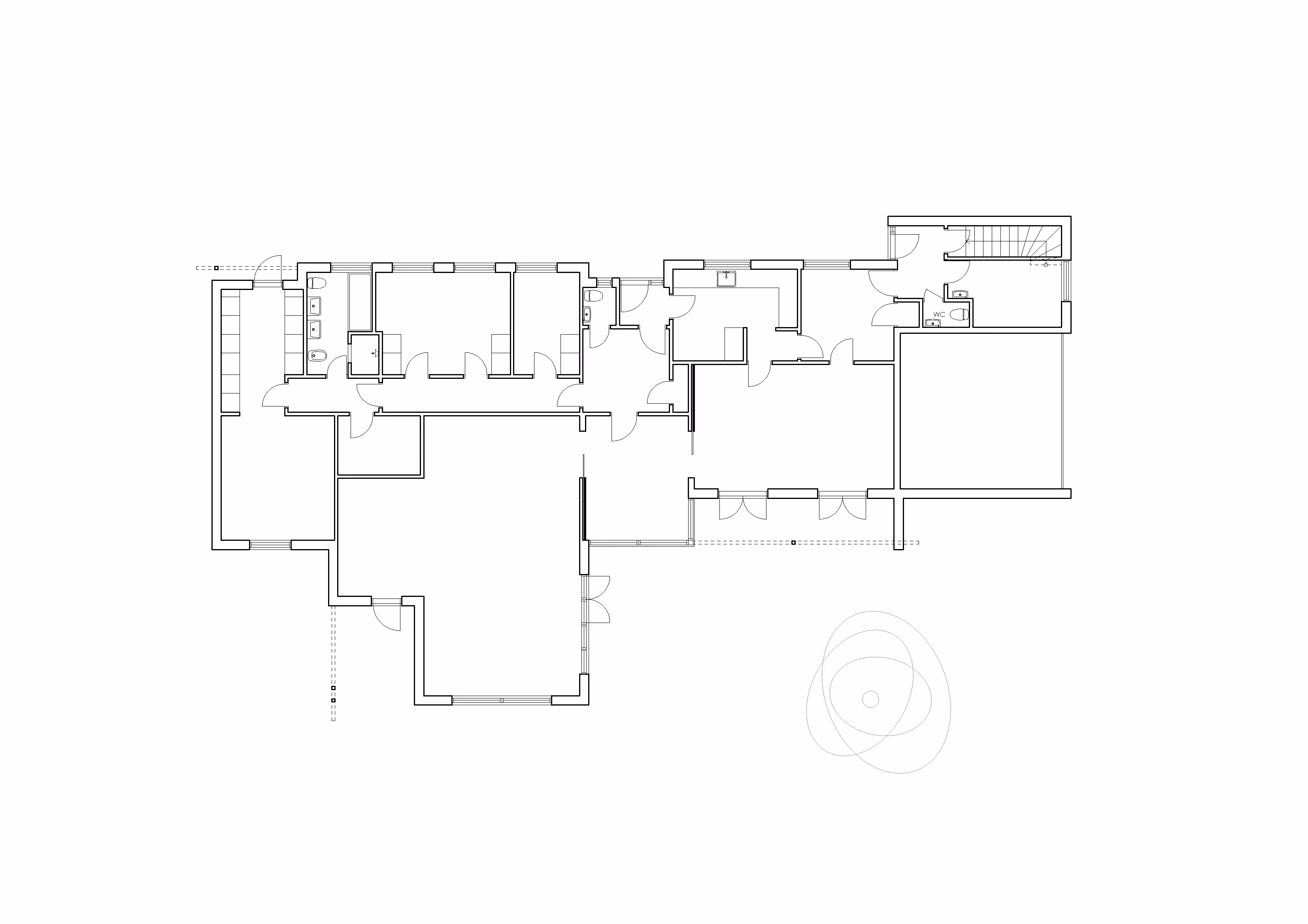
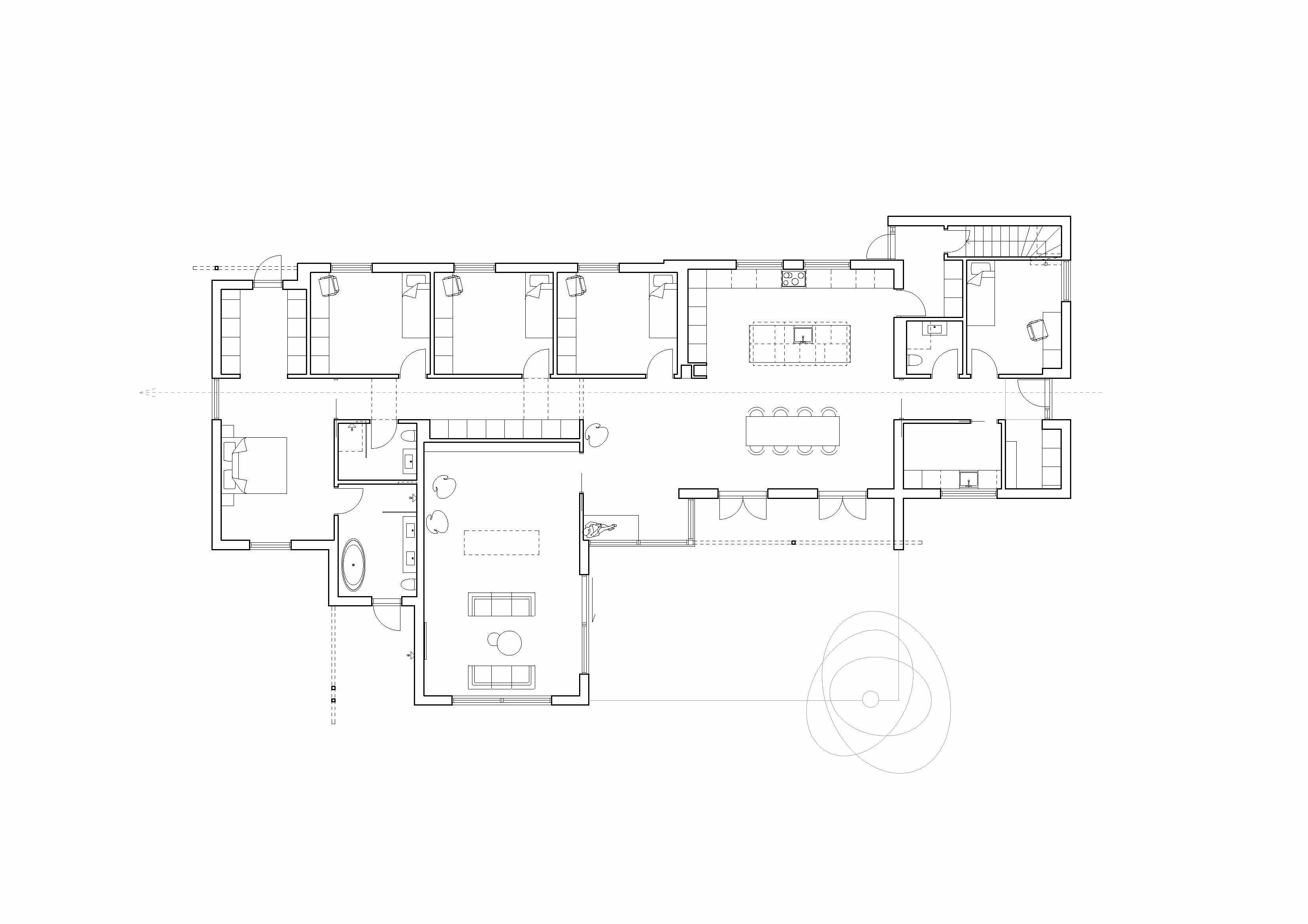
Tegnestuen har stået for en nænsom transformation af dette hus fra 1959, oprindeligt tegnet af arkitekt Helge Thobo-Carlsen. Renoveringen er udført med stor respekt for husets oprindelige arkitektoniske linjer og materialitet og fremstår nu som en tidssvarende og funktionel bolig, tilpasset de nye ejeres ønsker og behov. Huset er opgraderet med kvalitetsmaterialer, hvor særligt egetræ går igen som gennemgående element i både vinduer, gulve og indvendige døre. Træets varme struktur bidrager ikke blot til hjemmets æstetik, men understøtter også en biogen tilgang med fokus på naturlige materialer og bæredygtighed. Taget er udskiftet med en klassisk sort vingetegl, og ved gavlene er det afsluttet med hakbrædt – præcis som på det oprindelige hus. Villaen har fået en ny planløsning, der rummer en familie på seks. Den tidligere garage er integreret i boligen og indeholder nu en ny entré, et bryggers samt adgang til værelse og toilet. Ved indgangen er der skabt en sigtelinje på langs af huset, som trækker blikket gennem boligen og videre ud mod haven. Et nyt vinduesparti i gavlen understreger dette arkitektoniske greb og inviterer dagslyset ind i hjemmet. Køkkenet er placeret mod øst og har fået et stort ovenlys over vaskeøen, som sikrer et generøst lysindfald. Ved ovenlysvinduet bryder fritlagte gitterspær sig igennem som et skulpturelt element, der samtidig viser en del af den oprindelige tagkonstruktion. Spisepladsen er anlagt parallelt med køkkenet og giver rig mulighed for at samle mange gæster. Alrummet åbner sig mod vest og det primære uderum, hvor en ny træterrasse griber fat i det eksisterende træ og skaber en naturlig forbindelse mellem hus og have. Alle børneværelser vender mod øst og har adgang til eget badeværelse. Mod vest og nord er der indrettet en forældreafdeling med eget bad og walk-in-closet, hvilket tilfører boligen en eksklusiv oplevelse af komfort og velvære. Husets facade er bevaret i den oprindelige hvide grovpuds, som står i smuk kontrast til de nye egetræsvinduer. Kombinationen tilfører både stoflighed og varme til såvel det ydre udtryk som de indvendige rum. De synlige spærender er ligeledes bevaret – et tidstypisk træk fra perioden, der understreger husets håndværksmæssige kvalitet og lethed i konstruktionen.
A1 Tegnestue har ydet rådgivning inden for følgende:
– Skitseprojekt og overordnet materialevalg
– Ny planløsning/rumdisponering
– Byggeansøgning til kommunen
– Hovedprojekt/projektering
– Byggetilsyn og byggemøder
– Færdigmelding og ibrugtagningstilladelse ved kommunen
Indretningsarkitekt Mette Risbæk har ydet rådgivning inden for følgende:
– Valg af inventar, møblering, lamper, gardiner, fliser og farvepalet på indvendige vægge
Foto: Steffen Stamp
Type:
Ombygning - enfamiliehus
Beboelse:
274 m2
Carport:
Garage:
Beliggenhed:
Odense M
Status:
Udført
Bygherre:
Privat



















































